Pulteney Court

Bath

Pulteney Court, Bath



Feedback Closed     Proposed Layouts

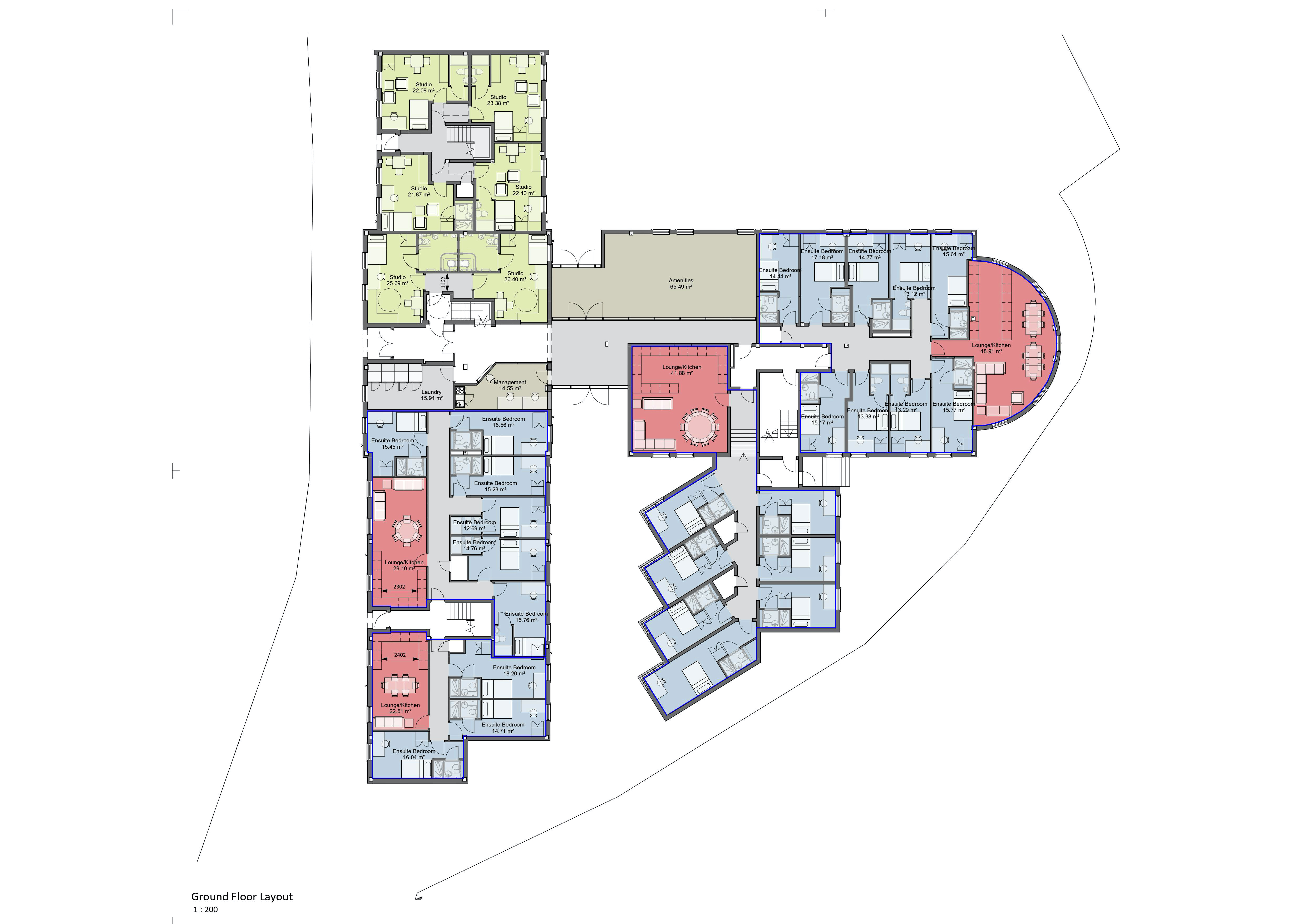
Welcome to the information development proposals for Pulteney Court. Owners, CBRE Global Investments are bringing forward plans to remodel and extend the current student accommodation site. The plans are to reduce the number of student rooms from 137 to 128, providing larger room sizes, better shared communal areas and create improved open green spaces within the site boundary.

Comments are now closed.

A planning application will be made in due course to B&NES Council.

Project Benefits

  • Re-use and improvement of existing building envelope rather than new build.
  • New extension in discrete position with very little visibility from surrounding area.
  • Improved sustainability with removal of gas heating combined with new electric-based heating and ventilation.
  • Improved provision for residents with every room gaining an en-suite.
  • Improved communal facilities with better kitchen / dining / living facilities as well as shared common space.
  • Improved entrances and reception for a more welcoming arrival.
  • Increased cycle parking.
  • Improved flood mitigation measures with the inclusion of more soft landscaping.
  • Reduced number of residents overall.
#
Aerial View


#
Ground Floor Layout


#
Red line proposed extension